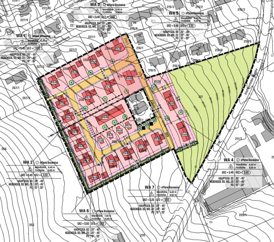
12/25 Einbeziehungssatzung "Am Wolfsberg"
Auslegung des Entwurfs der Einbeziehungssatzung "Am Wolfsberg" in Unteregg nach § § (2) BauGB in der Zeit vom 15.12.2025-20.01.2026


Bürgerfreundlichkeit ist uns wichtig! Deswegen können Sie hier einfach und schnell einen Termin für das Bürgerbüro (Einwohnermeldeamt, Passamt, Gewerbeamt) reservieren. Gleichzeitig erhalten Sie Informationen über die vorzulegenden Dokumente und anfallenden Gebühren.
Nicht fündig geworden? Es können nicht alle Dienstleistungen online angeboten werden. Melden Sie sich bitte in diesen Fällen telefonisch unter 07300 9696 - 0 oder kontaktieren Sie direkt die zuständigen Ansprechpartner/-innen.
Karlheinz Thoma-- -- --
Hier finden Sie aktuelle Bekanntmachungen zu Bauleitplanverfahren , die sich noch im laufenden Aufstellungsverfahren befinden.
-- -- --
Die rechtsverbindlichen Bebauungspläne der Gemeinde Roggenburg sind im Geodatenportal der Stadt Neu-Ulm und des Landkreises Neu-Ulm veröffentlicht. Mit dem unten stehenden Link gelangen Sie direkt zu den Bebauungsplänen im Geodatenportal.
Sollten Sie den gesuchten Bebauungsplan nicht finden, stehen Ihnen die Mitarbeiter des Bauamts gerne zur Verfügung.